Charmante Altbauwohnung in zentraler Sackgassenlage - Wohnen mit Charakter im Herzen von Wetter!
Objektart
Adresse
Objektdaten
Informationen
Ausstattung
Details
Charmante Altbauwohnung in zentraler Sackgassenlage - Wohnen mit Charakter im Herzen von Wetter
Im Herzen der beliebten Ruhrstadt Wetter, ruhig gelegen am Ende einer Sackgasse, befindet sich diese besondere Altbauwohnung mit unverwechselbarem Charme. Das im Jahr 1873 errichtete Gebäude wurde kontinuierlich gepflegt, saniert und instand gehalten.
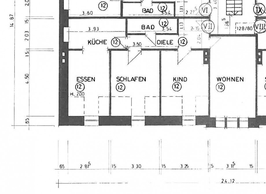
Typische Altbaumerkmale wie die beeindruckende Backsteinfassade und Deckenhöhen von rund 3 Metern verleihen der Immobilie ihren einzigartigen Charakter und schaffen ein großzügiges Wohngefühl.
Bereits beim Betreten überzeugt die geräumige Diele, die ausreichend Platz für eine praktische Garderobe bietet und als zentraler Dreh- und Angelpunkt der Wohnung dient. Direkt links öffnet sich das gemütliche Wohnzimmer mit seinen charmanten "Prinzessinnenfenstern", die eine besonders wohnliche und warme Atmosphäre schaffen.
Die Wohnung verfügt über zwei gut geschnittene Schlafräume sowie ein innenliegendes Badezimmer mit Eckbadewanne und integrierter Duschmöglichkeit. Ein echtes Highlight - wie so oft im Altbau - ist die großzügige Küche mit direktem Übergang zum Essbereich. Hier entstehen nicht nur Mahlzeiten, sondern auch die schönsten Gespräche. Die vorhandene Kücheneinrichtung kann auf Wunsch übernommen werden.
Im Jahr 2021 wurde die Wohnung umfassend renoviert - inklusive neuer Elektrik und moderner Gastherme, sodass Sie hier sorgenfrei einziehen können.
Die Waschmaschine ist platzsparend in der Küche integriert. Zusätzliche Möglichkeiten zum Trocknen bieten sowohl der Trockenboden als auch ein separater Trockenkeller.
Zur Wohnung gehört ein eigener Kellerraum. Darüber hinaus stehen ein abschließbarer Fahrradkeller (bequem mit nur zwei Stufen vom Hof erreichbar) sowie ein gemeinschaftlicher Gartenbereich zur Verfügung. Dieser lädt zum Verweilen ein - ob beim Grillen, Austausch mit den Nachbarn oder einfach zum Entspannen. Auch für Familien ist gesorgt: Ein Trampolin für die Kleinen ist bereits vorhanden. Die Hausgemeinschaft wird als ausgesprochen angenehm und harmonisch beschrieben.
Ein weiterer Pluspunkt: Ein eigener Stellplatz im Innenhof ist bereits im Angebot enthalten. Zusätzlich können gegenüber Tiefgaragenstellplätze für jeweils 65 EUR monatlich angemietet werden.
Die zentrale Lage rundet das Gesamtbild perfekt ab: Bahnhof und Innenstadt erreichen Sie bequem in nur etwa 5 Minuten zu Fuß.
Fazit: Eine Altbauwohnung mit Charakter, Charme und moderner Ausstattung - ideal für alle, die das Besondere suchen.
Bauweise
Massiv gebautes Wohn- und Geschäftshaus im Schöntal. Satteldach mit
begehbarer Bodendämmung.
Fenster
Doppeltverglaste Kunststofffenster, im Wohnzimmer von 2018
Heizung
Moderne Gasetagenheizung von 2021 mit Niederbrennwerttechnik.
Größe
Wohnfläche: Ca. 74,32qm
Parkmöglichkeiten
Fester Stellplatz im Hof, Anmietung von Tiefgaragenstellplätzen gegenüber möglich.
Weitere Details im Expose
Die Wohnlage Schöntal befindet sich im Stadtteil Alt-Wetter, dem historischen Zentrum der Stadt Wetter (Ruhr) im Ennepe-Ruhr-Kreis, und zeichnet sich durch eine attraktive Kombination aus naturnahem Wohnen und guter Infrastruktur aus. Schöntal liegt in unmittelbarer Nähe zur Ruhr sowie zum Harkortsee, wodurch ein hoher Freizeit- und Erholungswert gegeben ist. Die Umgebung bietet eine angenehme, familienfreundliche Atmosphäre und spricht sowohl Eigennutzer als auch Berufspendler an.
Alt-Wetter verfügt über eine solide Infrastruktur mit Einkaufsmöglichkeiten, Gastronomie und Einrichtungen des täglichen Bedarfs. Schulen, Kindergärten und medizinische Versorgung sind gut erreichbar und unterstreichen die Alltagstauglichkeit der Lage. Zudem bietet der Bahnhof Wetter (Ruhr) eine gute Anbindung an den regionalen Schienenverkehr, wodurch umliegende Städte wie Hagen, Witten, Bochum und Dortmund schnell erreichbar sind.
Links
Energieausweis (Verbrauchsausweis)
95,40 kWh / (m²*a) Energieverbrauchskennwert
95,40 kWh / (m²*a) Energieverbrauchskennwert
95,40 kWh / (m²*a) Energieverbrauchskennwert
Weitere Informationen
| Wesentlicher Energieträger | Gas |
| Energieausweis Ausstelldatum | 2019-05-17 |
| Energieausweis Jahrgang | ab dem 1.5.2014 |
| Energieverbrauch für Warmwasser | enthalten |
| Energieausweis Werteklasse | C |
| Energieausweis Baujahr | 1873 |
| Energieausweis Gebäudeart | Wohngebäude |
| Heizung | Etagenheizung |
| Befeuerung | Gas |
