Erstbezug! Exklusive, barrierefreie Penthouse-Wohnung mit Ruhrblick in Wetter! Große Dachterrasse!
Objektart
Adresse
Objektdaten
Informationen
Ausstattung
Details
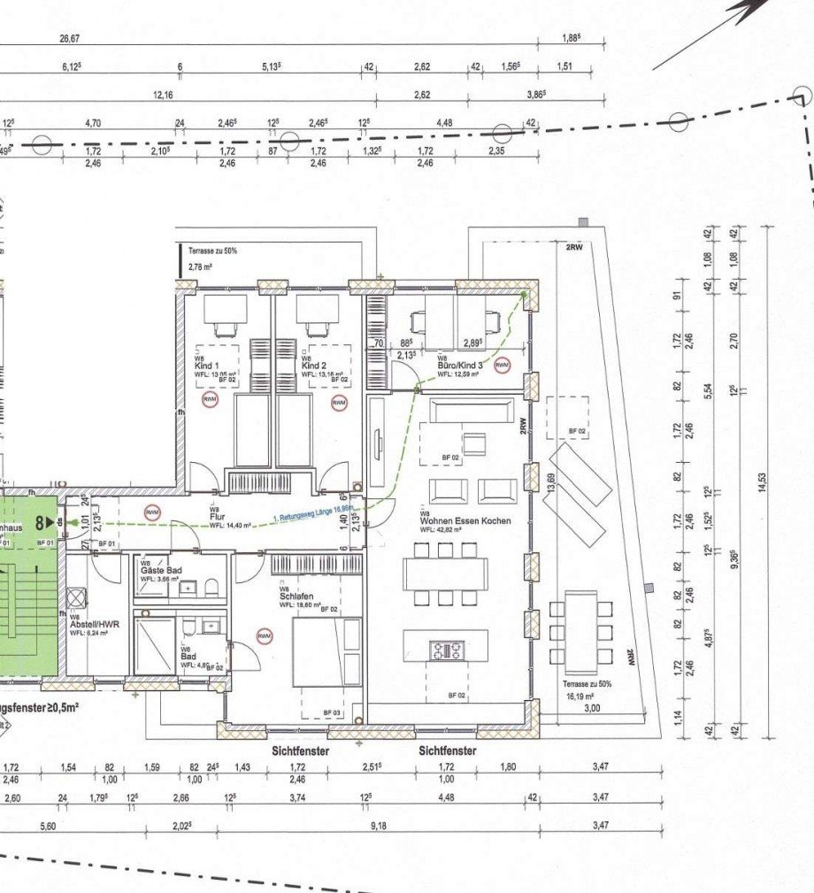
Exklusives Penthouse, direkt an der Ruhr- mit XL Dachterrasse!
Hier bieten wir im Erstbezug eine moderne, stilvolle Neubauwohnung in zentraler Lage von Wetter, direkt an der schönen Ruhr gelegen:
barrierefrei, mit modernem Duschbad, 4 Schlafzimmern (eines davon mit Bad en Suite), mit ca. 43m² großzügigem, lichtdurchfluteten Wohnzimmer inklusive offener Küchenzeile, von dort Ausgang auf die ca. 32m² große Dachterrasse mit Blick auf die Ruhr zwischen den Baumwipfeln. Hauswirtschaftsraum; Auf eine kleinere Terrasse gelangen Sie vom Hauptschlafzimmer mit Bad en Suite aus. Auch an den Kinderzimmern ist eine weitere Terrasse.
Ein Außenstellplatz kann zu EUR 60,- im Monat angemietet werden.
Vinylböden
Glatt geputzte Wände
Fußbodenheizung (Wärmepumpe inklusive PV-Anlage)
Elektrische Rollläden
Hauswirtschaftsraum
Barrierefrei
3Terrassen
Ein kleiner, hauseigener Spielplatz wird erstellt
Aufzug
Fahrradabstellplatz seitlich am Haus (nicht abschließbar)
QNG-Plus (staatliches Siegel, das hohe ökologische, ökonomische und soziokulturelle Standards bei Neubauten bescheinigt)
1 Stellplatz EUR 60,- pro Monat
Treppenhausreinigung und Winterdienst sind in der geschätzten NK-Vorauszahlung bereits enthalten.
Keine Haustiere.
Die Wohnlage
Die Wohnung liegt im Herzen von Wetter, in Altwetter.
Die fußläufige Nähe zum beliebten Harkortsee, mit dem neu gestalteten Seeplatz und dem 2015 errichteten
Café/Restaurant Friedrich am See bietet tolle Möglichkeiten, der Hektik des Alltages auch
mal zu entkommen.
Spazieren Sie bis nach Herdecke und weiter nach Hagen oder nutzen Sie in der entsprechenden
Saison die MS Friedrich Harkort um gemütlich über den See und die Ruhr bis nach Herdecke überzusetzen.
Schulen und Kindergärten sind in der nahen Umgebung zu finden.
Auch das Zentrum von Wetter mit seinen zahlreichen Einkaufsmöglichkeiten, Apotheken, Ärzten,
Restaurants und dem Bahnhof ist fußläufig gut erreichbar.
Bushaltestellen befinden sich in direkter Umgebung.
Die Wohnung ist vollständig bezugsfertig renoviert und bezugsfrei.
Energieausweis (Bedarfsausweis)
8,50 kWh / (m²*a) Endenergiebedarf
8,50 kWh / (m²*a) Endenergiebedarf
8,50 kWh / (m²*a) Endenergiebedarf
Weitere Informationen
| Wesentlicher Energieträger | Erdwärme |
| Energieausweis Ausstelldatum | 2026-03-26 |
| Energieausweis gültig bis | 26.03.2036 |
| Energieausweis Jahrgang | ab dem 1.5.2014 |
| Energieausweis Werteklasse | A_PLUS |
| Energieausweis Baujahr | 2026 |
| Energieausweis Gebäudeart | Wohngebäude |
| Befeuerung | Erdwärme |
